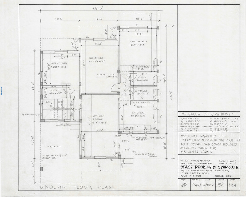
Working Drawing of Proposed Bunglow on Plot No. 40 in Sopan Bag Co-Op Housing Society, Pune for Mr. John D'cruz.

Space Designers' Syndicate Collection \ Space Designers' Syndicate Building Projects \ Bungalow for John D'cruz \ Working Drawing of Proposed Bunglow on Plot No. 40 in Sopan Bag Co-Op Housing Society, Pune for Mr. John D'cruz.
Bungalow for John D'cruz, architectural drawings (visual works), 1986-01-06, Space Designers' Syndicate Collection, Pune Architectural History Archive, https://paha.site/ark:/71826/media_1992

Metadata

Identifier sds_j(194)_dr(4)_22
Title Working Drawing of Proposed Bunglow on Plot No. 40 in Sopan Bag Co-Op Housing Society, Pune for Mr. John D'cruz.
Type and Architectural elements architectural drawings (visual works)
stairs (series of steps)
kitchens
bedrooms
Building services
interior architecture (object genre)
Description floor plans (orthographic projections)
Greyscale ;
Scale - 1":4'-0"
Stakeholders - Mr. John D'cruz (Client), Space Designer's Syndicate (architects)
Date Created 1986-01-06
Sub-type working drawings
Format 510 x 400 mm
Technique and Material tracing paper
Language English
Rights CC BY-NC-SA
Rights Holder PAHA
Contributor Digitized by - Santosh Kule (Aryan Imaging) ;
Metadata by - Namita Kalve
Date Digitized 2023-06-10
Publisher PAHA