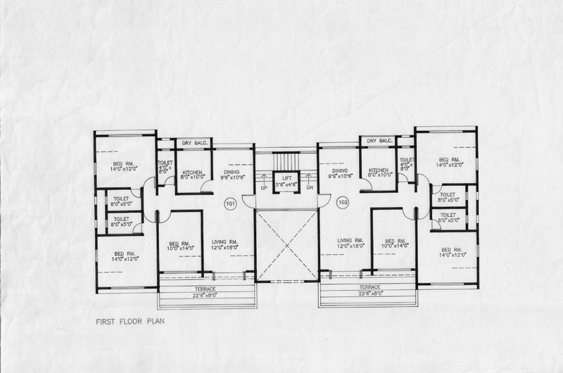
First Floor Plan

Space Designers' Syndicate Collection \ Space Designers' Syndicate Building Projects \ Kalpana empress II, Hadapsar \ First Floor Plan
Kalpana empress II, Hadapsar, architectural drawings (visual works), Space Designers' Syndicate Collection, Pune Architectural History Archive, https://paha.site/ark:/71826/media_1737

Metadata

Identifier sds_j(305)_dr(2)_56
Title First Floor Plan
Type and Architectural elements architectural drawings (visual works)
stairs (series of steps)
lifts (elevators)
kitchens
Building services
interior architecture (object genre)
Description floor plans (orthographic projections)
Black and white ;
No Scale
Stakeholders - Space Designer's Syndicate (architects)
Sub-type detail drawings (drawings)
Format 420 x 290 mm
Technique and Material tracing paper
Language English
Rights CC BY-NC-SA
Rights Holder PAHA
Contributor Digitized by - Santosh Kule (Aryan Imaging)
Metadata by - Janhvi Sharma
Date Digitized 2023-06-10
Publisher PAHA